SD 121-2F

121 qm II. Bv.
121 qm DIN277
2 Vollgeschosse
Ausbauhaus

KFW55 Haus einzugsfertig:

Auf Anfrage

Kontakt

Kurzübersicht

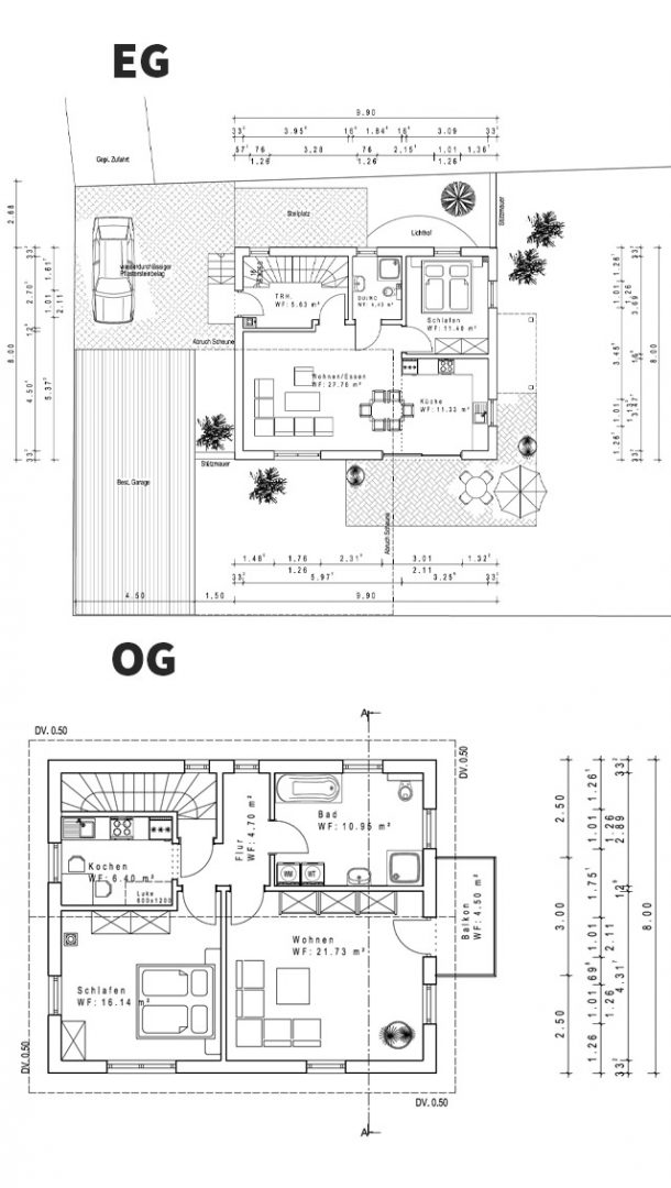
Effizienzhaus 55 SD 121-2F // 121 qm Wohnfläche nach 2. BV // 121 qm DIN 277 // 2 Vollgeschosse


  • Architektenleistung inkl. Statik
  • 374 mm Außenwände U-Wert 0,12
  • Innenwände tragend (nichtragend) 169 mm (149 mm)
  • EG/OG Decke Rohbau 262 mm
  • Zimmermannsdachstuhl mit Satteldach Konstruktion aus KVH® – Holz und Leimbindern
  • Frankfurter Pfanne matt mit Protegonbeschichtung
  • Kunststoff – Haustüre mit Alufüllung, Edelstahlgriff
  • 6 – Kammer Rahmen 70 mm mit Regelair
  • 3 – Fach Verglasung Ug-Wert 0,6, Fenstergesamt Uw-Wert 0,82
  • Wärmegedämmte Alurollläden Außenfensterbänke Alu
  • Balkon
  • Dachentwässerung Titanzink oder Kunststoff
  • Nano – Außenendputz weiß oder farbig
  • Ausbau als 2 – Familienhaus
  • Elektrik inkl. Zählerschrank für 2 Zähler
  • Hocheffizienz Luft-Wasserwärmepumpe Dimplex
  • 410 l Hydrojettower
  • Anhydrit Fließestrich
  • Fußbodenheizung raumgesteuert EG und OG
  • 1 zusätzliche Echtglasdusche
  • tapezierfertiger Trockenbau
  • Malerarbeiten, Rauhfaser deckend weiß gestrichen
  • Fliesen verlegen im Gäste-WC, Flur EG, Küche, Bad
  • Laminat verlegen im Wohnzimmer, Schlafen EG, OG außer Bad
  • Innenfensterbänke Werzalit
  • CPL Innentüren
  • Buche Treppe massiv
  • 4 Rauchmelder Keller/Bodenplattenabdichtung „Safety“
  • Blower Door Test und Energieberater für KFW 55

Grundriss

zum vergrößern bitte klicken (PDF)